一、樓盤整體介紹
德商&石榴.春和天驕,環城生態帶為鄰,雄踞成都生態人文黃金走廊、千億電商產業腹心,占位主城價值洼地。四大公園環繞,多重商圈交匯,群校環伺,武青西一路**及武青西二路幼兒園(在建)下樓即達,坐享雙地鐵、雙TOD生活圈。全板樓,全橫廳,鉆石光感立面,棟棟視野開闊,打造“無邊鏡面”光影水景、六重歸家勝景,精琢五重園林、六大景觀走廊,營造微度假生活體驗。全齡娛樂架空層泛會所,全板式、全橫廳、多面采光全明通透設計,全生命周期高拓戶型。 德商物業6臻金鑰匙管家服務,以人為本,24H呵護幸福生活。

樓盤配套:
交通公交:社區巴士,步行15米到達項目 軌交:武侯項目9號線、17號線均已開通,步行1.3公里及900米。
幼兒園武青西二路幼兒園(在建)
中**在建:武青西一路**、、武青西三路**、未命名的一所**北二外、川大附小、西北**外國語等
綜合商場除了已經投入使用的正成廣場,機投橋TOD將為武侯新城北片區帶來一個全新的商業消費中心,屆時將圍繞站點進行高強度立體開發,西北、西南兩塊商業商務混合用地及東南條形商業用地已就位。3公里范圍還有龍湖星悅薈、萬達廣場、吾悅廣場、大悅城、金楠天街、家樂福等商業。
醫院武侯第三人民醫院、武侯西南醫院、成都市武侯區第二人民醫院、米諾娃婦女兒童中心醫院、華佛國際婦產醫院、四川現代醫院(高端私立醫院)等,成都市婦女兒童中心醫院
其他永康森林公園、水韻天府、天府芙蓉園、簇錦公園、環城生態帶等生態資源交通公交:木棉新城站(607路、652路、654路、662路) 自駕:三環路、繞城高速橫向連通城市各區,下繞城高速出口后僅需5便可到達,成金青快速路、蜀龍路、成綿高速可快速**市中心。地塊南側的觀湖大道(在建)預計21年6月前建成通車,可連接蜀龍路與成綿高速,實現15到建設路,25到太古里的快速通行。 軌道交通:市域S12線距項約1km、地鐵8號線二期站點中龍潭寺西站距本案約2km; 地鐵23號線經過保利湖心島西側區域并設有站點,預計距本案約1.5km。(信息成都市規劃和自然資源居,**終以政府規劃為準)
幼兒園金蘋果森林旗艦幼兒園、新都區**幼兒園、加州陽光幼兒園、新都區機關幼兒園
醫院區域內有大型三甲醫院 成都市二醫院(在建,目前已經主體封頂)、西部戰區總醫院
其他生態配套:熊貓國際旅游度假區,成都植物園、繞城生態帶、北湖公園、香城濕地公園、郁金香漫花莊園、高爾夫公園球場
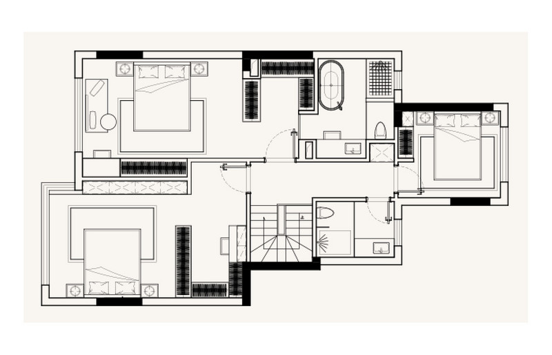
二、戶型圖介紹

1、朝向為南
一套好的戶型,應安排盡可能多的房間朝向為南面,以確保陽光能充足照到屋內。房屋朝向優劣的順序依次為:正南、東南、東、西南、北、西。
2、戶型方方正正
戶型方正不是指整套房子是一個完整的方形,而是各個房間和功能區域的形狀是方正的矩形。戶型方正的房子面積利用率比較高,如果房子的拐角太多的話會占用房屋的使用面積。如果家里人口本來就多,買的面積又不大的情況下,更加要選擇方正的戶型,這樣才會讓實際居住環境看起來較大。
3、房間動靜要分區
一般房子分為動區和靜區兩個區域。動區是人們活動較為頻繁的區域,應該靠近入戶門設;而靜區主要供居住者休息,相對比較安靜,應當盡量布置在戶型內側。動區和靜區要分離,要減少相互之間的干擾。
4、房間大小要適宜
房間太小會讓人感覺很壓抑,不舒適,但是單個房間太大又會讓人感覺空曠,又浪費面積。比如說層高為2.7米的話,33平米的客廳最為舒適;主臥一般采用3.3×3.6、3.6×3.9、3.9×4.2或4.5等幾個尺寸。
三、裝修規劃-裝修效果圖分享




如果房子拿到手后才去看裝修,入住的時間就要推后了;匆匆忙忙定的裝修,也不放心。因此,提前花3~6個月的時間,用來了解考察裝修,根據自己的預算和需求選擇一個更適合的口碑好、工藝好、性價比高、價格透明的裝修公司,才是明智的選擇!
視覺家裝飾作為家裝行業的上市家裝品牌,一直以先進、時尚、向上的生活方式為核心做家裝。作為公司VIP重點服務小區,特推出五套樣板間裝修名額,先到先得,全套方案、VR效果圖、報價,同時成都視覺家的設計團隊也針對融創國賓雅集的三大戶型提前做了許多成熟的設計方案,另外還有樓盤的專屬裝修優惠政策,歡迎預約到店了解溝通。