日期:
來源:購房網收集編輯:admin
金成光華壹品,用心營造未來美好生活!安家立業乃人生一件大事,安家是安置家庭,有了房子,家才能安定。那么我們如何考慮買新房,當然需要考慮到全家人的生活品質和生活便利與否。因此除了房子本身,房子周邊的配套設施也是購房者一定要考慮的因素,好的配套,不僅提升的是房子價值,還有全家人的便捷生活和居住幸福感。金成光華壹品周邊介紹金成光華壹品位于成都市溫江區。
通達則地盛,地盛則繁華。發達的交通路網是城市跳動的脈搏,更是城市發展的原動力。而城市交通的發展,已成為加速區域發展的一個重要推助器。金成光華壹品,暢享多維交通路網。金成光華壹品房屋類型住宅,區域溫江區,售樓處地址成都市溫江區光華新城楊柳河畔。
人們來到城市是為了生活,居住在城市是為了生活得更好。城市生活日新月異,人們對生活品質的追求也不斷提升,而享受高品質生活,離不開居住社區周邊的各項配套。金成光華壹品,居住在此,盡享一城優越繁華配套。金成光華壹品供暖方式自采暖,建筑形式板樓,綠化率30%。
公攤面積20%是房子的公攤系數,根據公式公攤系數=總公共分攤面積/(套內建筑面積×總套數)計算得來的,一般無電梯多層住宅10%~15%,小高層15~23%,高層20%~28%。低密度容積率在1%及以下的住宅公攤系數常見3%左右。 金成光華壹品裝修毛坯,規劃戶數228戶,戶型為115平-130平

115戶型(3室2廳,115平,東)

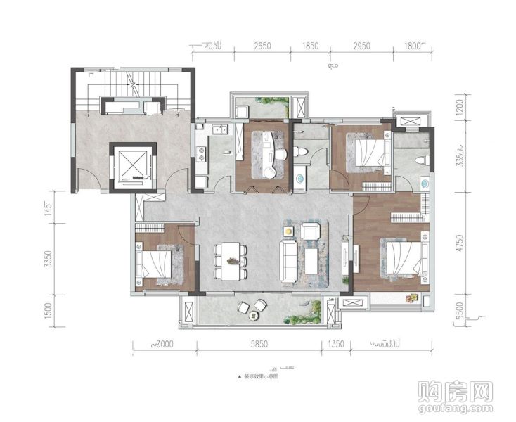
130戶型(4室2廳,130平,南北)