日期:
來源:購房網收集編輯:admin
保利湖光里院關愛傳遞真情,服務贏得健康。置業買房,就是為了改善生活條件,擁有完善的配套非常重要。保利湖光里院醫院成都市二醫院(在建,目前已經主體封頂)、西部戰區總醫院。
越是難以多得的產品,越是深得青睞與厚愛,保利湖光里院自面市就受到置業者的密切關注,一城視線皆聚焦于此,一起來了解下!保利湖光里院戶型有3室-4室,社區配套社區停車場,社區活動中心。

湖鳴疊院 3疊下疊184㎡(3室3廳,184平,南北)

湖影疊院2+1平院224㎡(3室3廳,224平,南北)

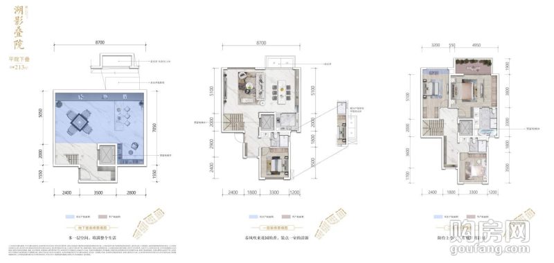
湖影疊院2+1下疊213㎡(4室3廳,213平,南北)
在歷史的長河中,都在尋尋覓覓。聽慣了交響樂偶爾也會懷念院子前面的山水之聲,這一輩子總要住一住洋房吧稀缺的地方才更顯得寬泛,野生的環境更令人心動。住宅亦是如此在眾多的居所當中,恰好有那么一個與你四目相對,此時此刻這一處的華美才讀得懂您*的內心,搖擺不定的心智讓機會變得跟少。保利湖光里院房屋類型別墅,規劃戶數344戶,二批次2021年12月11-13日選房。
地段不能代表一切,當代年輕人在買房時更應關注社區環境,因為房子不僅是容身之所,更是一種全新的生活方式。生活環境的好壞直接影響著生活的舒適感和幸福感。保利湖光里院容積率1.20,周邊教育金蘋果森林旗艦幼兒園、新都區第一幼兒園、加州陽光幼兒園、新都區機關幼兒園、成都實驗外國語學校、石室中學、成都嘉祥外國語學校、電子科技大學附屬實驗小學、熊貓路小學、梁勝小學,周邊介紹保利湖光里院項目位于新都區。