日期:
來源:購房網收集編輯:admin
德商花樣年碧云天璽,予你全新生活方式。詮釋低密生活,德商花樣年碧云天璽容積率2.00。
無論是二人世界、三口之家,亦或是多代同堂,德商花樣年碧云天璽,靈動多變的居住空間都能裝下家的溫暖!德商花樣年碧云天璽供暖方式自采暖,物業公司德商產投物業服務股份有限公司,戶型有4室-4室

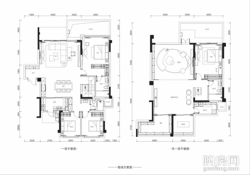
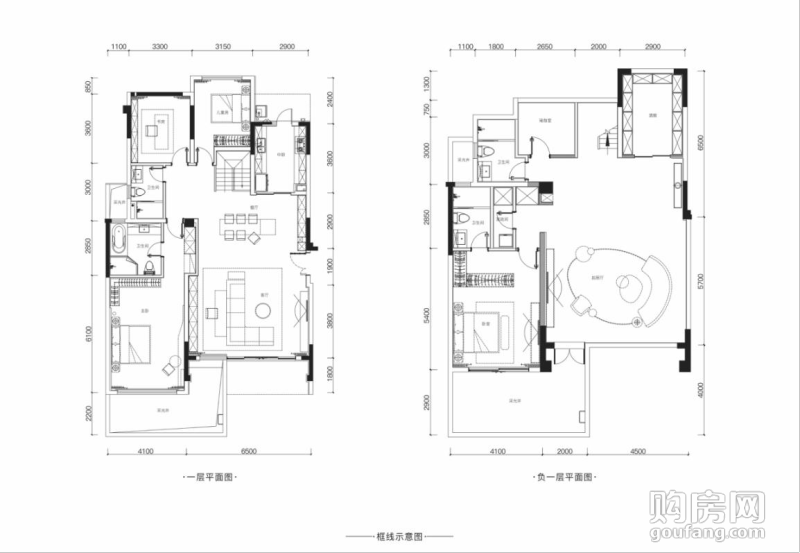
A2(4室3廳,288平,南北)

A4(4室3廳,288平,南北)

A4 ’(4室3廳,288平,南北)
買房對于每個人來說都不是一件簡單的事情,而且買房子是一件非常繁瑣的事,在買房選房的過程中我們經常會遇到這樣的問題,比如說一個100平米的房子,實際去看的時候卻發現好像連80平米都不到,這個就是我們今天要說到的得房率的問題如果不了解得房率,那么后期吃虧了都不知道。德商花樣年碧云天璽得房率不同戶型各不相同,請具體咨詢,地址成都市天府新區萬安街道中太路一號,停車場數地下車位數255個。
通達則地盛,地盛則繁華。發達的交通路網是城市跳動的脈搏,更是城市發展的原動力。而城市交通的發展,已成為加速區域發展的一個重要推助器。德商花樣年碧云天璽,暢享多維交通路網。德商花樣年碧云天璽房屋類型住宅,綠化率30%,周邊教育六藝堂藝術培訓、成都天府新區紅豆幼兒園、成都上成培訓學校、乘風駕駛學校、天府三中、四川天府新區寧安幼兒園、幸福麓山幼兒園、成都天府新區萬安實驗幼兒園、華陽中學項目部。